游戏是儿童的天性,但生病的儿童往往既要忍受病痛的折磨,还要长时间失去游玩、嬉戏的机会。
西班牙的Juegaterapia基金会关注到了这一现象,计划对马德里的公立妇产儿科医院Gregorio Marañón进行改造。他们计划将医院的屋顶空间改造为一个游乐场,让住院的儿童也可以在户外愉快地玩耍,促进身体康复。

医院位于市中心,举目望去都是规整的高楼大厦和玻璃外墙。充满现代科技感的同时,也失去了童趣和人文魅力。
设计师决心对屋顶空间进行与众不同的改造,以此为城市的天空增加一抹靓丽的色彩。因此,整个游乐场的色彩十分丰富,薄荷绿、天空蓝、活力紫……共同构成了一个对比强烈的梦幻空间。

整个游乐场分为三个部分,靠近O’Donnell街的部分,人流车流量大,环境比较嘈杂。设计师在这里布置了小舞台、秋千、滑梯、自行车和迷宫。孩子们可以尽情地挥洒自己的汗水,感受运动的快乐。


第二个区域面向远处的公园,环境更加清幽、安静。设计师在这里设计了一张大型不规则的高低组合桌,孩子们可以坐在这里享受一个人的时光。旁边的区域布置了望远镜、桌上足球、七巧板等益智玩具,帮助开发孩子们的智力。

尽头处,还布置了一个小小篮球场,孩子们可以跑动起来,锻炼骨骼和肌肉力量。

这两个活动区域之间由一个镜子大厅相连。暖黄色的空间中澄澈透明的镜子,将两边通道的景色进行倒映,拉伸变形,让幼儿们体会到反射光的神奇秘密。

除了功能上的划分,整个游乐场的还通过统一的屋顶,营造出了一种整体美感。
不同于色彩各异的游乐设施,游乐场的屋顶是由白色混凝土打造而成。这些混凝土屋顶,高度不同、尺寸各异,由纤细的圆柱支撑起来。远看如同一朵朵飘在医院上方的云朵,充满了艺术美感。

“云朵”中有形状各异的几何孔洞,在遮蔽阳光、雨水之外,还为幼儿提供了观察光影形状的机会。
此外,由于游乐场地处天台上,为提高儿童游玩的安全性,整个场地的边缘都被一个半透明的网状围墙保护了起来。围墙上方“云朵”状的屋顶延伸了出来,如同儿童旺盛的好奇心,对着医院外的世界开心地招手。

总而言之,Gregorio Marañón医院通过搭建屋顶游乐场的方式,为自身增添了一份不同于传统妇产与儿科医院的优势,这是一个值得肯定的尝试。
项目名称:奥唐纳妇产医院屋顶花园
日期:2021年7月30日完工
面积:1240㎡
地点:西班牙 马德里
发起人:Juegaterapia Foundation
建筑师:padilla nicás arquitectos

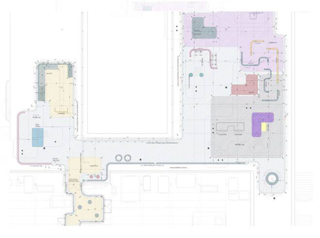
▲鸟瞰图

▲总体剖面图

▲镜面大厅详图

▲家具和游戏设施细节图
下一篇:下一站,陕西延川 !