“春风又绿江南岸,明月何时照我还”,这句家喻户晓的诗句,彰显了江南水乡的春意盎然与勃勃生机,又饱含着对这方土地深深的乡愁与眷恋。

在杭州,有一个取义于此诗的“春风又绿——江南水乡文化展”,道尽了江南之美。
这个江南文化大展,是杭州市临平博物馆打造,一座江南一隅的区县级小博物馆,如何打造一个江南文化大展?

视频加载中...
再忆江南水乡
展览选题立意
为响应长江三角洲区域一体化的国家发展战略。浙江省委省政府提出“诗画江南”作为省域品牌主题词。


位于大运河畔的临平,是水乡泽国良渚古国的核心区,更是杭州“全市域全方位融入长三角”的“第一棒”,自古以来便是典型的江南水乡。
杭州临平博物馆作为一家县区级博物馆,守正创新,突破传统的地方历史展示方式,开拓展览边界,以“江南水乡文化”为主题,契合了时代发展的要求,在唤起江南水乡的共同记忆,增强长三角区域文化的认同中,展现了博物馆的责任与担当。

再读江南水乡
展览内容策划
为了打造这个大展,杭州临平博物馆重新梳理了江南水乡的历史发展脉络,全面整理近二十年积累的藏品,充分吸收最新的考古及学术研究成果,邀请了国内历史学、考古学、文物与博物馆学、历史地理学等领域的专家学者,通力合作,经过了十余次的研究论证。

诚如著名考古学家严文明先生所言,临平茅山遗址稻作农业所体现的湿地经济,是从古至今贯穿江南发展的关键钥匙,再结合被誉为江南佳丽地的塘栖古镇所体现的江南市镇经济,形成了一套科学、独特的江南水乡文化阐释体系。


整个展览从地域、经济、生活、文化、转型等五个文化维度,全面展示江南水乡文化。通过向上挖掘江南文化的精神特质;向下展现栩栩如生的江南故事,以稻作、丝织、瓷器等独特的江南文化创造,呈现一个生动、立体的“江南印象”。



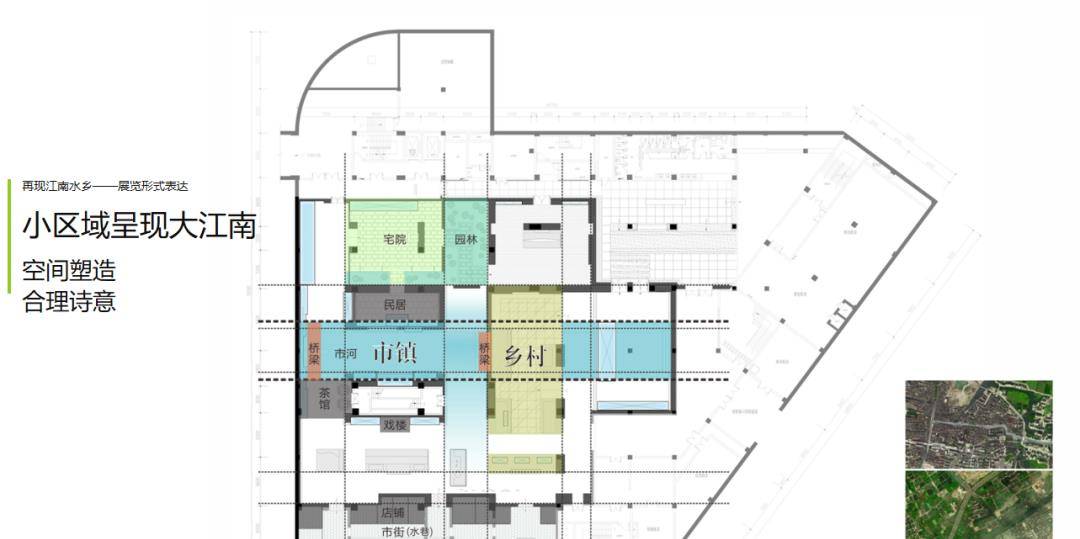
再现江南水乡
展览形式表达
为了让展览更加凸显江南水乡文化的特色,在空间塑造上,充分调度建筑空间,将展区以江南市镇布局进行科学规划,凝练河网、舟船、桥梁、社戏等江南水乡符号,虚实相兼,节点设计恰到好处,形成了“移步亦景”的展示效果。

展览大胆使用水乡绿为主色调,大量使用新材料工艺——仿玉石玻璃,通过仿自然光源照明,营造诗意唯美且符合时代气息的水乡印象空间。



通过信息组团,运用山水、涟漪等意象场景进行文物展示,充分体现文物所蕴含的价值。注重文物的保护性展示,对于耗时11年、花费近千万元保护的“明星展品”良渚文化独木舟,制定了专项的搬迁及展示方案,特制恒温恒湿展柜。


全馆展柜均采用低反射玻璃,打造无眩光的观展环境,清晰真实的展示文物,给观众呈上了一场视觉盛宴。

展览运用5G实时直播等新媒体手段,将水乡古镇现场搬进了展厅,实现室内室外的联动。利用360度VR全景虚拟展览让观众云享文博体验。

再续江南水乡
展览传播教育
为了更好地传承江南水乡文化,临平博物馆建设了“江南文献研究中心”,并以此为平台,开发了“江南文献数据库”,与浙江大学、华东师范大学等高校及省市文博单位合作,增强研究水平,举办多场学术讲座及研讨会、并出版系列书籍,引起了专家学者的广泛关注。



同时,杭州临平博物馆制定了详细的传播方案。前期通过“文博星推官”、在线直播等形式,提高展览的社会影响力与关注度。

开馆当天,结合承办省、市国际博物馆日主场活动,有50余家各级媒体对展览进行了报道,阅读量达800余万人次。每季度杭州临平博物馆还开展了观众调查,整体满意度达99%。

并且,全力打造江南水乡文化IP“江一才与阿南”。引进杭州知名文创品牌“水一方·晓风书屋”,在文创产品、文艺沙龙等方面开展多维度合作,拓展文化服务空间。

全新打造“水乡工坊”社会教育基地,深耕“童梦水乡”、“水乡印记”等研学品牌,通过“文物解读”+“品牌活动”打通文博服务“最后一公里”。

博物馆的文化影响力日益彰显,临平区委区政府决定以博物馆为依托,提出以打造“全域江南水乡文化体验地”为区文旅融合发展战略。

正所谓:一个博物馆影响了一座城。临平博物馆正在奋发前行,成为在探索新时代博物馆发展道路上,区县级博物馆中的佼佼者。
